Ház eladó

Budapest XV. ker., Kertváros városrész - Rákospalota Kertváros
140.000.000 Ft
€ 360.694
5 szoba 5 szoba
110 nm 110 nm

Ház eladó

Budapest XV. ker., Kertváros városrész - Rákospalota Kertváros

Leírás

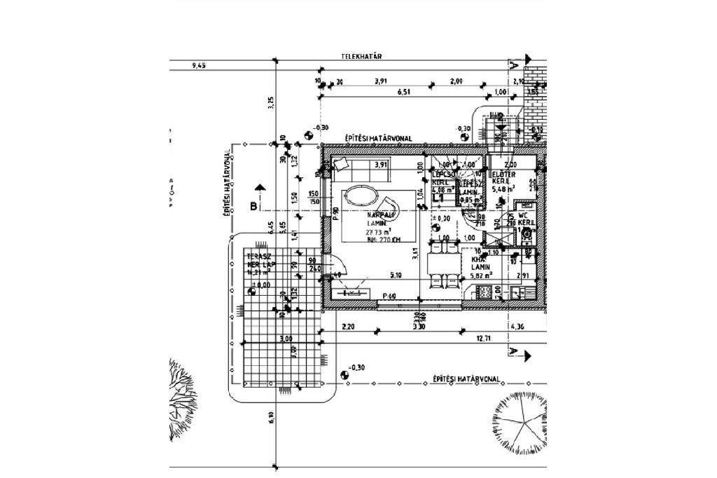
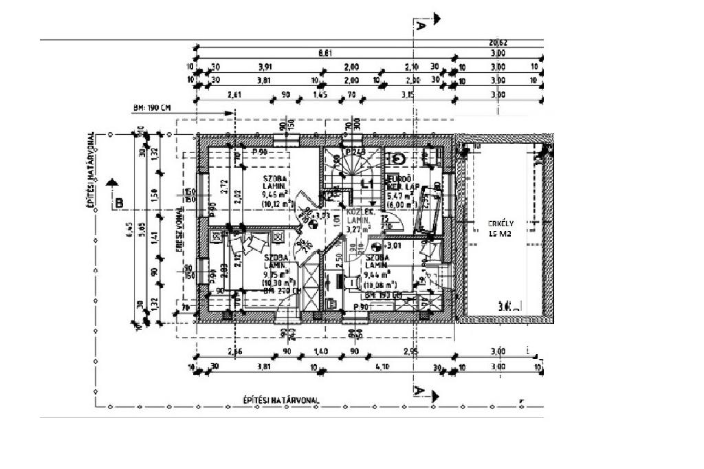
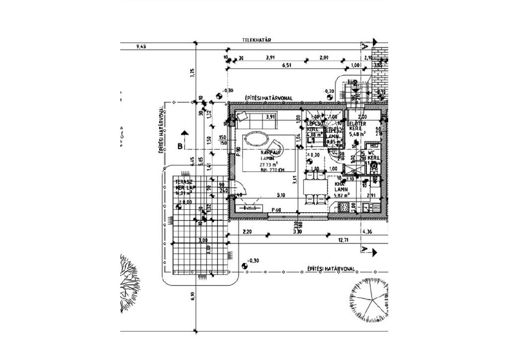
A CSENDES KERTVÁROSI KÖRNYEZETBEN, ÚJ ÉPÍTÉSŰ, AMERIKAI KONYHÁS NAPPALIS, 4 HÁLÓSZOBÁS, 110 M2, KÉTSZINTES IKERHÁZFÉL, 206 M2 TELEKKEL, TÁGAS 15 M2 TERASSZAL, AUTÓBEÁLLÓVAL.

A KÖRNYÉK:
Kertváros egyik csendes utcája, családi házas környezet, jó szomszédsággal, kiváló közlekedéssel.
A HÁZ JELLEMZŐI:
A ház várható átadási határideje 2026 év vége.
Az ingatlan kétszintes lesz, 30-as porotherm téglából épül, amelyet egy 10 cm-es grafitos szigeteléssel is ellátnak majd. Egy tágas amerikai konyhás nappali étkezővel, 4 háló, fürdőszoba és mosókonyha kerül kialakításra.
Autóbeállási lehetőség adott, illetve egy hangulatos 15 m2-es terasz és tároló is rendelkezésre fog állni.
A nyílászárók 5 légkamrás, 3 rétegű hőszigetelt ablakok lesznek. A fűtést kondenzációs kazán fogja biztosítani, a hideg burkolatok alatt padlófűtés kerül kialakításra, a szobákban pedig lapradiátorokat szerelnek fel. 2db hűtő-fűtő klíma is beszerelésre kerül.
Igény esetén extra költséggel kérhető: elektromos redőny, kamera, riasztó, konyhabútor, beépített szekrények.
Referencia ingatlanok megtekintése is lehetséges. Az ikerház másik fele is hasonló paraméterekkel fog rendelkezni, szintén eladó.

FINANSZÍROZÁS:
Az ingatlan TEHERMENTES! Banki finanszírozással is megvásárolható, melyben irodánk ingyenes tanácsadással áll rendelkezésükre!
VEVŐINK RÉSZÉRE A KÖZVETÍTÉS DÍJTALAN !!
A hirdetésben szereplő adatok tájékoztató jellegűek.

Összes mutatása

Tulajdonságok

Ref.:
58231
Állapot:
Új
Lift:
Nincs
Fűtés:
Egyéb egyedi
Egyéb helyiségek:
Terasz
Építőanyag:
Tégla
Összes mutatása

Energetikai tanúsítvány

Ehhez az ingatlanhoz nem tartozik energetikai tanúsítvány
Építés éve:
2026

Vegye fel velünk a kapcsolatot

* Ez a mező kötelező
Franchisee
Imobiliare Kft.
1152 Budapest, Illyés Gyula utca, 6-8./B
1152 Budapest, Illyés Gyula utca, 6-8./B XV. kerület
Hétfő-Péntek: 09:00-19:00,Szombat: 09:00-13:00

Munkatársaink


  • Kvárta Barnabás
    Irodatulajdonos

  • Szászi Bálint
    Képviselő

  • Fekete Izabella
    Asszisztens

  • Attila Szőcs
    Irodatulajdonos
Franchisee
Imobiliare Kft.
1152 Budapest, Illyés Gyula utca, 6-8./B
Tecnocasa Group Logo

Minden ügynökségnek saját tulajdonosa van és önállóan működik.

árfolyam 31/10/2025
EUR 388.14 HUF

cégünk

Elérhetőségeink

2025 Gruppo T.F.M. Szolgáltató Zrt. - P. IVA 27421275-2-42 - 1068 Budapest, Király utca 102.. Minden ügynökségnek saját tulajdonosa van és önállóan működik.

Adatvédelmi irányelvek | Cookies tájékoztató