Ház eladó

Budapest XV. ker., Rákospalota városrész - Rákospalota
114.500.000 Ft
€ 304.731
4 szoba 4 szoba
1 félszoba 1 félszoba
164 nm 164 nm
2 fürdő 2 fürdő

Ház eladó

Budapest XV. ker., Rákospalota városrész - Rákospalota

Leírás

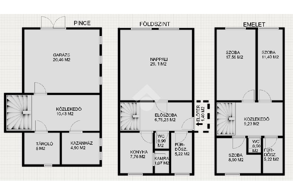
A XV. KERÜLETBEN: RÁKOSPALOTÁN, ELADÓ EGY ELŐKERTES, 164 M2, 5 SZOBÁS, BELSŐ 2 SZINTES, KÖZEPES ÁLLAPOTÚ, DUPLAKOMFORTOS CSALÁDI HÁZ, 361 M2 TELEKKEL, BEÉPÍTETT TERASSZAL, GARÁZZSAL, PINCÉVEL.

A HÁZ JELLEMZŐI:

A földszinten konyha, egy tágas nappali (igény esetén a nappaliból még egy szoba leválasztható), fürdőszoba és beépített terasz található. Az emeleten 3 szoba, nappali, fürdőszoba, illetve a padlásfeljáró kapott helyet. A ház alatt egy 41 m2-es pince van, ahol a kazánhelyiség, garázs és tároló került kialakításra.

A fűtésről gázcirkó és egy vegyestüzelésű kazán gondoskodik, valamint 2 db. hűtő-fűtő klíma. Minden radiátor külön szabályozható. A meleg víz bojler által megoldott.

A nyílászárók egy része műanyag, hőszigetelt ablakra lett cserélve, a bejárati ajtó pedig egy biztonsági acél ajtó. A villanyvezetékek rézből vannak, a vízhálózat horgonyzott acél vezeték. A tető jó állapotú, betoncseréppel fedett, a padlás szigetelt.

Autóbeállási lehetőség adott, a telek végében van egy kis kerti tó is.

FINANSZÍROZÁS:

Az ingatlan TEHERMENTES, hitelre is megvásárolható, akár azonnal birtokba vehető. Bankfüggetlen tanácsadóink, az ország összes pénzintézete közül gyorsan és gördülékenyen találja meg az Önnek legmegfelelőbb konstrukciót, egyedi kedvezményekkel. A hitel közvetítés díjmentes.

A hirdetésben szereplő adatok tájékoztató jellegűek.

Várjuk hívását munkanapokon 09.00- 19:00 óra között.

Amennyiben eladná saját ingatlanát, több mint 10 éve működő, kifejezetten a kerületre szakosodott irodánktól, INGYENES ÉRTÉKBECSLÉST kérhet.

Összes mutatása

Tulajdonságok

Ref.:
58863
Állapot:
Közepes állapotú
Emelet:
Földszint
Lift:
Nincs
Fűtés:
Egyéb egyedi (Gáz, Vegyes tüzelésű kazán, Kazán)
Egyéb helyiségek:
Terasz, pince
Összes mutatása

Energetikai tanúsítvány

Ehhez az ingatlanhoz nem tartozik energetikai tanúsítvány
Építés éve:
1988

Vegye fel velünk a kapcsolatot

* Ez a mező kötelező
Franchisee
Imobiliare Kft.
1152 Budapest, Illyés Gyula utca, 6-8./B
1152 Budapest, Illyés Gyula utca, 6-8./B XV. kerület
Hétfő-Péntek: 09:00-19:00,Szombat: 09:00-13:00

Munkatársaink


  • Kvárta Barnabás
    Irodatulajdonos

  • Szászi Bálint
    Képviselő

  • Fekete Izabella
    Asszisztens

  • Melinda Antal
    Képviselő

  • Attila Szőcs
    Irodatulajdonos
Franchisee
Imobiliare Kft.
1152 Budapest, Illyés Gyula utca, 6-8./B
Tecnocasa Group Logo

Minden ügynökségnek saját tulajdonosa van és önállóan működik.

árfolyam 27/02/2026
EUR 375.74 HUF

cégünk

Elérhetőségeink

2026 Gruppo T.F.M. Szolgáltató Zrt. - P. IVA 27421275-2-42 - 1068 Budapest, Király utca 102.. Minden ügynökségnek saját tulajdonosa van és önállóan működik.

Adatvédelmi irányelvek | Cookies tájékoztató