Ház eladó

Budapest XV. ker., Rákospalota városrész - Rákospalota
155.000.000 Ft
€ 425.018
4 szoba 4 szoba
125 nm 125 nm

Ház eladó

Budapest XV. ker., Rákospalota városrész - Rákospalota

Leírás

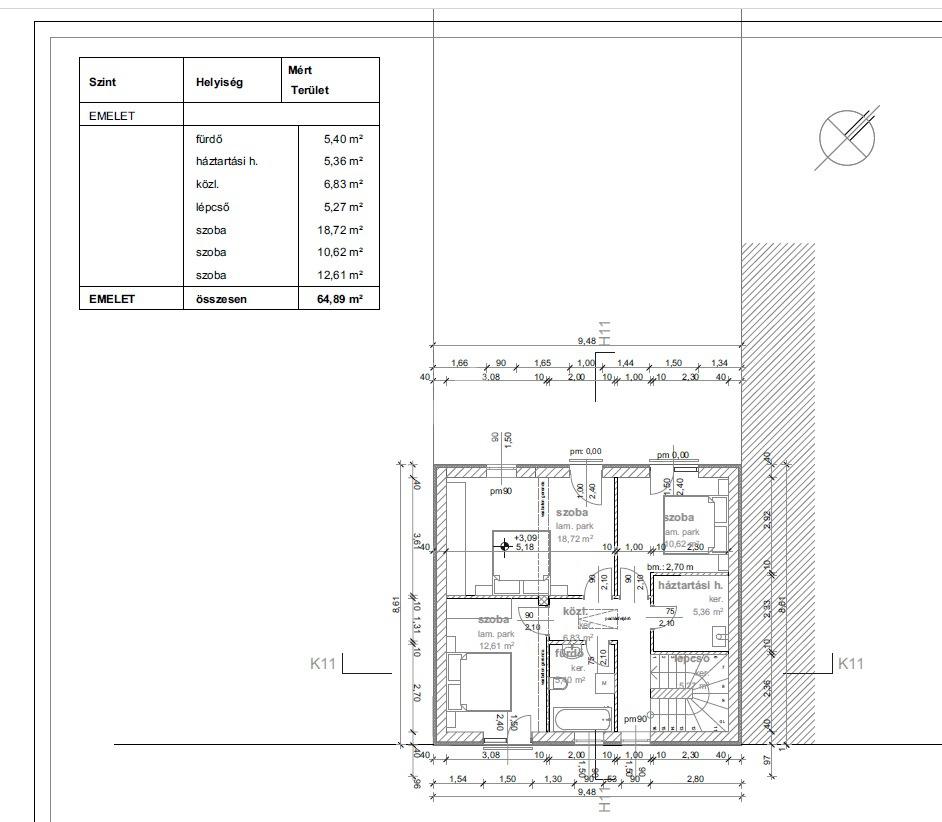
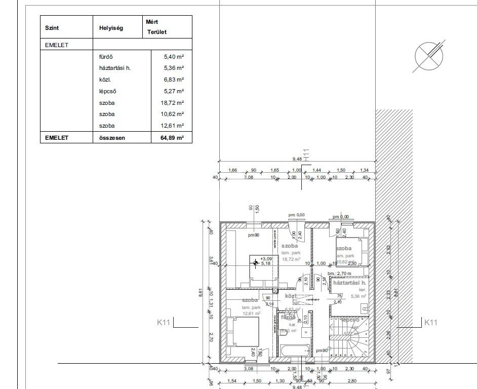
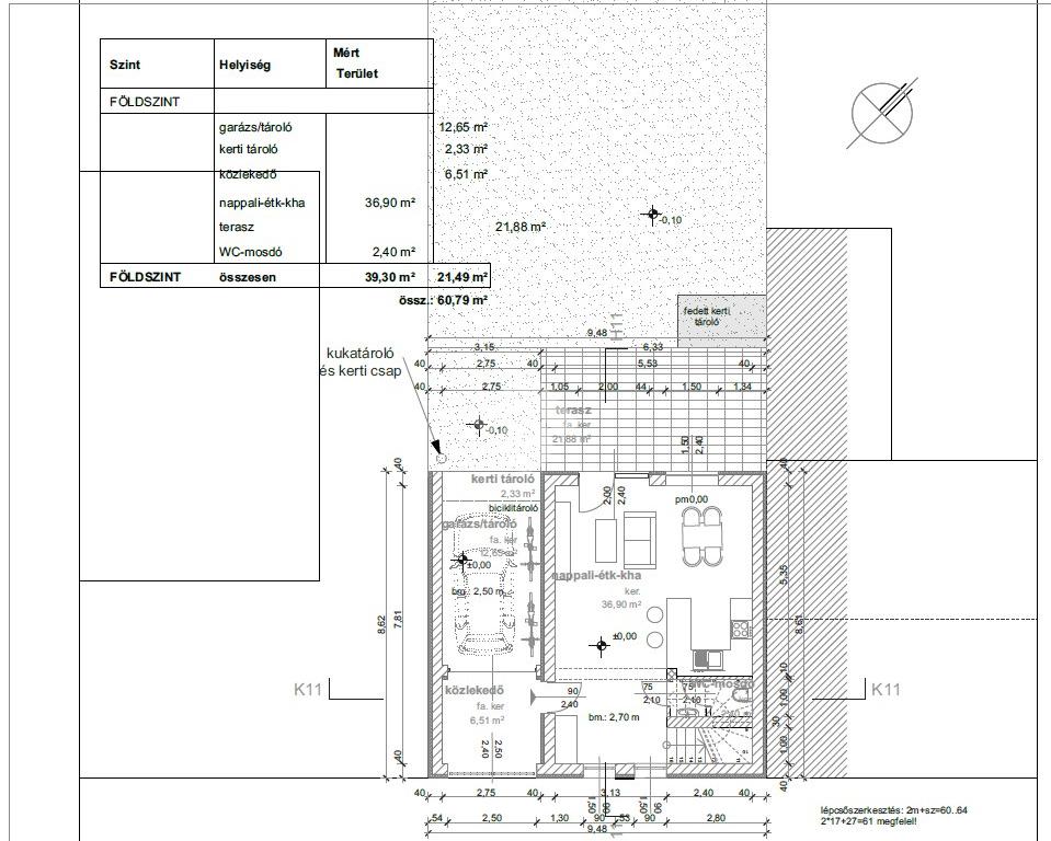
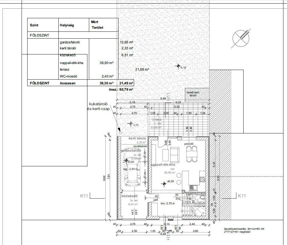
A XV. KERÜLETBEN: CSENDES UTCÁBAN, 125 M2, ÚJ ÉPÍTÉSŰ, BESLŐ 2 SZINTES, AMERIKAI KONYHÁS NAPPALIS, 3 SZOBÁS CSALÁDI HÁZ, 341 M2 TELEKKEL, 22 M2 TERASSZAL, GARÁZZSAL, KERTI TÁROLÓVAL.

VÁRHATÓ ÁTADÁSI IDŐ 2026 NYARA!!

A HÁZ JELLEMZŐI:
A földszinten tágas amerikai konyhás nappali, mellékhelyiség van, illetve a garázs és a 22 m2-es terasz. Az emeleten 3 szoba, egy háztartási helyiség (mosókonyha) és fürdőszoba került kialakításra.

A házon egy 10 cm-es külső szigetelés lesz, antracit cseréptetővel lesz fedve. A nyílászárók 3 rétegű műanyag ablakok lesznek.

A fűtést kondenzációs kazán, padlófűtés fogja biztosítani, egy fűtő-fűtő klíma is rendelkezésre fog állni. Burkolatok válaszhatóak 5000 Ft/m2 árban, a fürdőszobai felszerelések 300.000 Ft-ig az ár részét képezik.

FINANSZÍROZÁS:

Az ingatlan tehermentes, hitelre is megvásárolható. Bankfüggetlen tanácsadóink, az ország összes pénzintézete közül gyorsan és gördülékenyen találja meg az Önnek legmegfelelőbb konstrukciót, egyedi kedvezményekkel. A hitel közvetítés díjmentes.

A hirdetésben szereplő adatok tájékoztató jellegűek.
Várjuk hívását munkanapokon 09.00- 18:00 óra között.
Amennyiben eladná saját ingatlanát, több mint 16 éve működő, kifejezetten a kerületre szakosodott irodánktól, INGYENES ÉRTÉKBECSLÉST kérhet.

Összes mutatása

Tulajdonságok

Ref.:
60346
Állapot:
Új
Lift:
Nincs
Fűtés:
Egyéb egyedi (Gáz, Kazán)
Egyéb helyiségek:
Terasz (22 nm)
Építőanyag:
Tégla
Összes mutatása

Energetikai tanúsítvány

Ennél az ingatlannál az energetikai tanúsítvány folyamatban van
Építés éve:
2026

Vegye fel velünk a kapcsolatot

* Ez a mező kötelező
Franchisee
Imobiliare Kft.
1152 Budapest, Illyés Gyula utca, 6-8./B
1152 Budapest, Illyés Gyula utca, 6-8./B XV. kerület
Hétfő-Péntek: 09:00-19:00,Szombat: 09:00-13:00

Munkatársaink


  • Kvárta Barnabás
    Irodatulajdonos

  • Szászi Bálint
    Képviselő

  • Fekete Izabella
    Asszisztens

  • Roberta Lakner
    Képviselő

  • Lányi Barbara
    Képviselő

  • Melinda Antal
    Képviselő

  • Attila Szőcs
    Irodatulajdonos
Franchisee
Imobiliare Kft.
1152 Budapest, Illyés Gyula utca, 6-8./B
Tecnocasa Group Logo

Minden ügynökségnek saját tulajdonosa van és önállóan működik.

árfolyam 16/04/2026
EUR 364.69 HUF

cégünk

Elérhetőségeink

2026 Gruppo T.F.M. Szolgáltató Zrt. - P. IVA 27421275-2-42 - 1068 Budapest, Király utca 102.. Minden ügynökségnek saját tulajdonosa van és önállóan működik.

Adatvédelmi irányelvek | Cookies tájékoztató