Lakás eladó

Budapest XV. ker., Rákospalota városrész - Rákospalota
59.990.000 Ft
€ 154.916
2 szoba 2 szoba
46 nm 46 nm

Lakás eladó

Budapest XV. ker., Rákospalota városrész - Rákospalota

Leírás

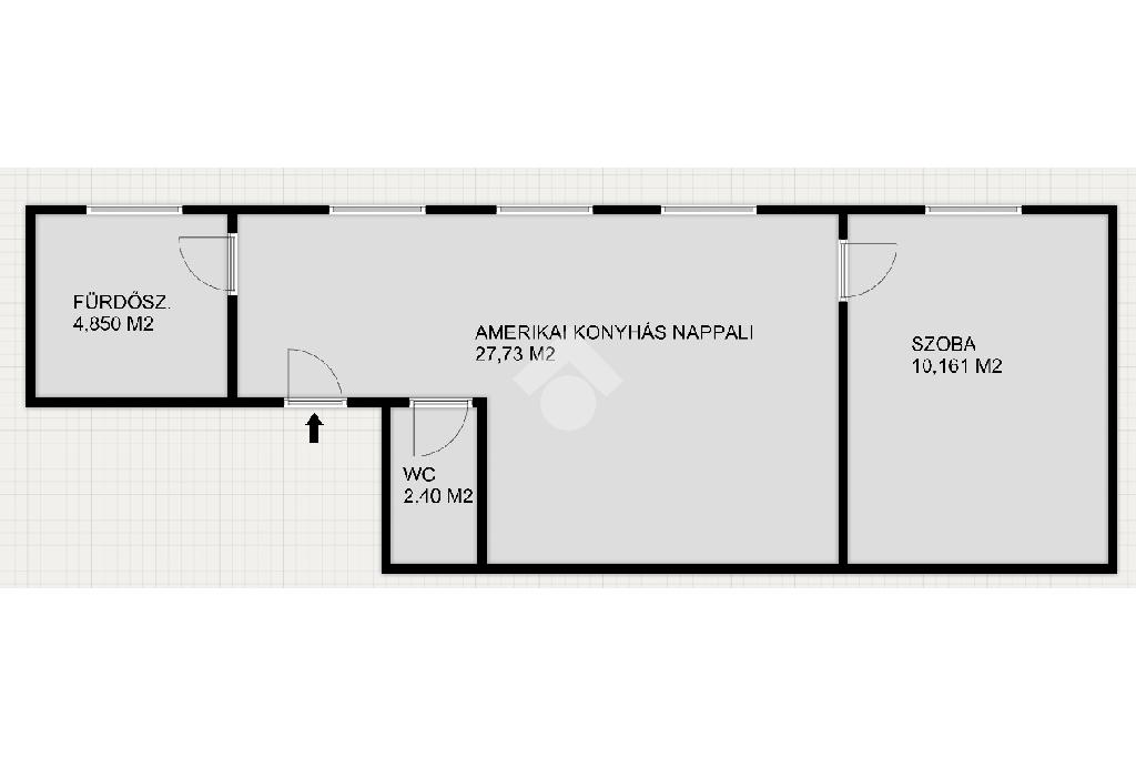
A XV. KERÜLETBEN: ELADÓ EGY ÚJ ÉPÍTÉSŰ, 46 M2, AMERIKAI KONYHÁS NAPPALIS, 1 SZOBÁS, I. EMELETI TÁRSASHÁZI TÉGLALAKÁS.

VÁRHATÓ ÁTADÁSI IDŐ 2026 VÉGE!!


A LAKÁS JELLEMZŐI:
A lakás várható átadási határideje 2026 év vége. A társasház 30-as porotherm téglából épül, amelyet egy 12 cm-es szigeteléssel is ellátnak majd. A tetőszerkezet Terrán Zenit betoncserepet kap, a bádogos szerkezet pedig Lindab lemezből fog készülni

A lakásban tágas étkezős amerikai konyhás nappali, szoba, fürdőszoba és mellékhelyiség kerül kialakításra.

A nyílászárók 3 rétegű hőszigetelt ablakok lesznek, alumínium redőnnyel és szúnyoghálóval ellátva. Házközponti fűtés lesz (padlófűtés), amit hőszivattyú lát el, a hűtés-fűtés és használati meleg víz előállítása lakásonként központi meleg víz készítővel történik majd. Az ár tartalmazza a burkolatokat, 6.000-8.000 Ft/ nm ár között szabadon választhatóak és a szanitereket.

FINANSZÍROZÁS:
Az ingatlan TEHERMENTES lesz, hitelre is megvásárolható, az Otthon Start 3% hitel NEM vehető igénybe a lakásra. Bankfüggetlen tanácsadóink, az ország összes pénzintézete közül gyorsan és gördülékenyen találja meg az Önnek legmegfelelőbb konstrukciót, egyedi kedvezményekkel. A hitel közvetítés díjmentes.
Várjuk hívását munkanapokon 09:00-18:00 között.
A hirdetésben szereplő adatok tájékoztató jellegűek.
Amennyiben eladná saját ingatlanát, több mint 10 éve működő, kifejezetten a kerületre szakosodott irodánktól, INGYENES ÉRTÉKBECSLÉST kérhet.

Összes mutatása

Tulajdonságok

Ref.:
58554
Állapot:
Új
Emelet:
1
Lift:
Nincs
Fűtés:
Házközponti (Hőszivattyús fűtés)
Építőanyag:
Tégla
Összes mutatása

Energetikai tanúsítvány

Ehhez az ingatlanhoz nem tartozik energetikai tanúsítvány
Építés éve:
2026

Vegye fel velünk a kapcsolatot

* Ez a mező kötelező
Franchisee
Imobiliare Kft.
1152 Budapest, Illyés Gyula utca, 6-8./B
1152 Budapest, Illyés Gyula utca, 6-8./B XV. kerület
Hétfő-Péntek: 09:00-19:00,Szombat: 09:00-13:00

Munkatársaink


  • Kvárta Barnabás
    Irodatulajdonos

  • Szászi Bálint
    Képviselő

  • Fekete Izabella
    Asszisztens

  • Attila Szőcs
    Irodatulajdonos
Franchisee
Imobiliare Kft.
1152 Budapest, Illyés Gyula utca, 6-8./B
Tecnocasa Group Logo

Minden ügynökségnek saját tulajdonosa van és önállóan működik.

árfolyam 19/12/2025
EUR 387.24 HUF

cégünk

Elérhetőségeink

2025 Gruppo T.F.M. Szolgáltató Zrt. - P. IVA 27421275-2-42 - 1068 Budapest, Király utca 102.. Minden ügynökségnek saját tulajdonosa van és önállóan működik.

Adatvédelmi irányelvek | Cookies tájékoztató