Lakás eladó

Budapest XV. ker., Rákospalota városrész - Rákospalota
84.700.000 Ft
€ 225.421
2 szoba 2 szoba
77 nm 77 nm

Lakás eladó

Budapest XV. ker., Rákospalota városrész - Rákospalota

Leírás

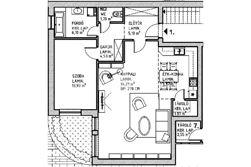
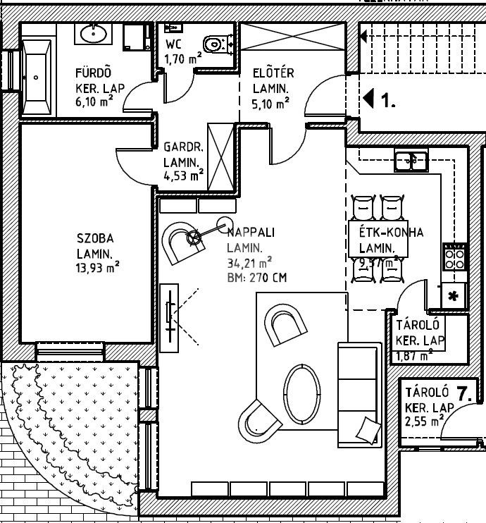
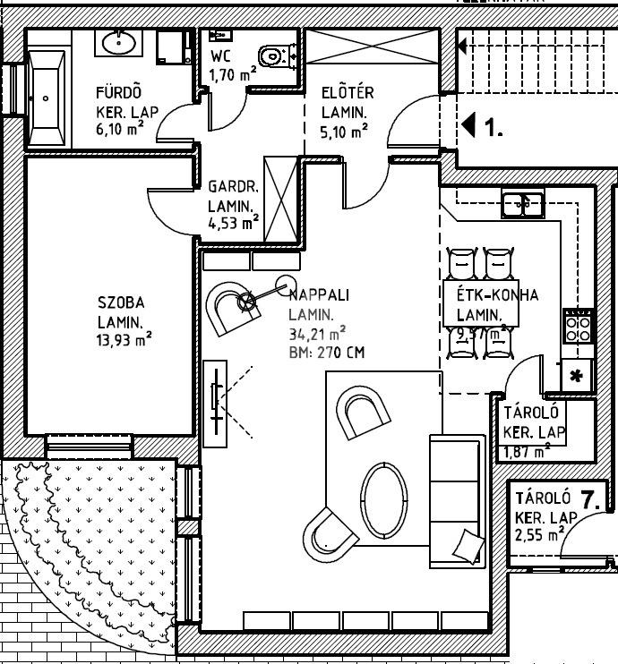
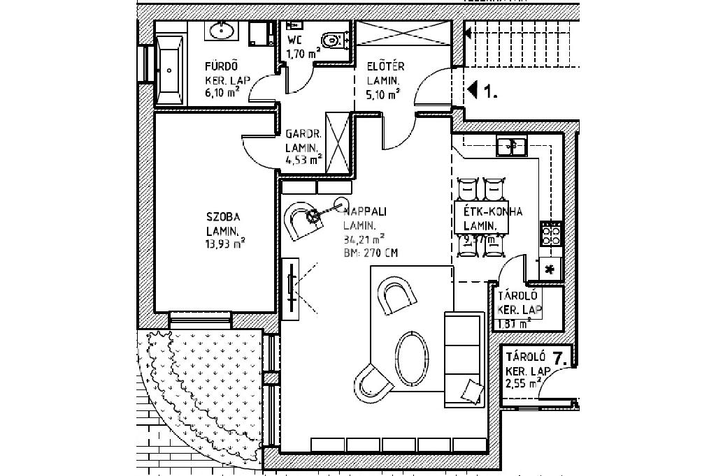
A FREKVENTÁLT RÉSZEN, ÚJ ÉPÍTÉSŰ, 77 M2, AMERIKAI KONYHÁS NAPPALIS, HÁLÓSZOBÁS, FÖLDSZINTI TÁRSASHÁZI TÉGLALAKÁS, TÁROLÓVAL.


A LAKÁS JELLEMZŐI:
A lakás várható átadási határideje 2026 év vége. A társasház 7 lakásos lesz, 3 szintes, 30-as porotherm téglából épül, amelyet egy 10 cm-es grafitos szigeteléssel is ellátnak majd.

A lakásban tágas amerikai konyhás nappali, szoba, fürdőszoba, előszoba, gardrób, tároló és mellékhelyiség kerül kialakításra.

A nyílászárók 6 légkamrás, 3 rétegű hőszigetelt ablakok lesznek. A fűtést kondenzációs kazán fogja biztosítani, a hideg burkolatok alatt padlófűtés kerül kialakításra, a szobákban pedig lapradiátorokat szerelnek fel és 1 hűtő-fűtő klímát.

Az ár tartalmazza a burkolatok, szerelvények és szaniterek beépítését, az anyag árat nem.
Igény esetén extra költséggel kérhető: elektromos redőny, kamera, riasztó, konyhabútor, beépített szekrények.

Lehetőség van plusz tároló (2.000.000 Ft/db), illetve udvari autóbeálló (2.500.000 Ft/db.) vásárlásához.
Referencia ingatlanok megtekintése is lehetséges.

FINANSZÍROZÁS:
Az ingatlan TEHERMENTES lesz, hitelre is megvásárolható. Bankfüggetlen tanácsadóink, az ország összes pénzintézete közül gyorsan és gördülékenyen találja meg az Önnek legmegfelelőbb konstrukciót, egyedi kedvezményekkel. A hitel közvetítés díjmentes.
Várjuk hívását munkanapokon 09:00-18:00 között.
A hirdetésben szereplő adatok tájékoztató jellegűek.
Amennyiben eladná saját ingatlanát, több mint 10 éve működő, kifejezetten a kerületre szakosodott irodánktól, INGYENES ÉRTÉKBECSLÉST kérhet.

Összes mutatása

Tulajdonságok

Ref.:
59392
Állapot:
Új
Emelet:
Földszint
Lift:
Nincs
Építőanyag:
Tégla
Építés éve:
2026
Összes mutatása

Energetikai tanúsítvány

Ehhez az ingatlanhoz nem tartozik energetikai tanúsítvány
Építés éve:
2026

Vegye fel velünk a kapcsolatot

* Ez a mező kötelező
Franchisee
Imobiliare Kft.
1152 Budapest, Illyés Gyula utca, 6-8./B
1152 Budapest, Illyés Gyula utca, 6-8./B XV. kerület
Hétfő-Péntek: 09:00-19:00,Szombat: 09:00-13:00

Munkatársaink


  • Kvárta Barnabás
    Irodatulajdonos

  • Szászi Bálint
    Képviselő

  • Fekete Izabella
    Asszisztens

  • Melinda Antal
    Képviselő

  • Attila Szőcs
    Irodatulajdonos
Franchisee
Imobiliare Kft.
1152 Budapest, Illyés Gyula utca, 6-8./B
Tecnocasa Group Logo

Minden ügynökségnek saját tulajdonosa van és önállóan működik.

árfolyam 27/02/2026
EUR 375.74 HUF

cégünk

Elérhetőségeink

2026 Gruppo T.F.M. Szolgáltató Zrt. - P. IVA 27421275-2-42 - 1068 Budapest, Király utca 102.. Minden ügynökségnek saját tulajdonosa van és önállóan működik.

Adatvédelmi irányelvek | Cookies tájékoztató